売買物件詳細DETAILS

白山市中島町・一戸建

一戸建

1,230万円

  • 白山市中島町ニ110-1
  • 北鉄バス 南白山バス停 徒歩7分
物件資料 お問い合わせ
手取川や手取キャニオンロードに近い、自然豊かなロケーション。 美しい山並みを望む開放感のある環境で、四季を感じながらゆったりとした暮らしが実現できます。 敷地は広々としており、駐車スペースは約20台分確保可能。 住宅用地としてはもちろん、事業用・セカンドハウス・アウトドア拠点など多用途にご検討いただけます。 自然志向の方、広い土地をお探しの方におすすめの物件です。
POINT!
手取キャニオンロード(自転車道路)や手取川にほど近く、四季折々の美しい山並みを身近に感じられる自然豊かな住環境。 サイクリングやランニング、散歩、川遊びなど、アウトドアを日常的に楽しめるロケーションが魅力です。 自然志向の方や、ゆとりある暮らしを求める方におすすめの物件です。 敷地はゆとりのある広さを確保しており、駐車スペースは約20台分確保可能。 ご家族の多い方はもちろん、来客の多い方や、事務所・作業場・趣味の拠点としての利用も検討できます。 建物は木造瓦葺2階建、延床面積166.85㎡、5LDKのゆとりある住空間。 平成16年に増改築されており、多人数世帯や二世帯的な使い方にも対応可能です。 静かな環境でのびのびと暮らしたい方、リフォームやリノベーションを前提に自分らしい住まいづくりをしたい方におすすめです。 自然と広さを兼ね備えた、開放感あふれる住環境。 「自然の近くで暮らしたい」「ゆとりある敷地を活かしたい」 そんなライフスタイルを実現できる魅力的な物件です。

物件詳細

  • 価格
    1,230万円
    坪単価
    4万円
  • 種別
    一戸建
    区分
    中古
  • 用途地域
    無指定
    都計区域
    市街化調整区域
  • 所在地
    白山市中島町ニ110-1 Google MAP
  • 交通
    北鉄バス 南白山バス停 徒歩7分
    小/中学校
    朝日小学校/鶴来中学校
  • 最寄施設
    ローソン鶴来白山町店まで720m

土地

  • 面積
    1017.80m2 307.88坪
    角地
    非角地
  • 地目
    宅地
    地目(現況)
    宅地
  • 建ぺい率
    60%
    容積率
    200%
  • 建築条件
    -
    土地権利
    所有権

道路

  • 接道
    東側 幅員約3.2m 間口約69.8m

建物・設備

  • 構造
    木造
    延床面積
    166.85m2 50.47坪
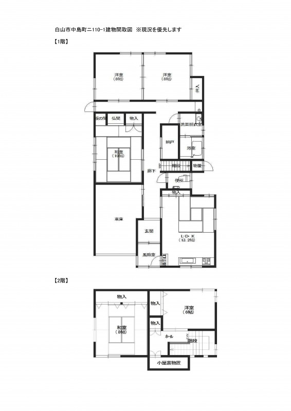
  • 間取り
    5LDK(1階:和10/和6/和6/LDK13.2/納戸/便所/浴室/洗面/車庫(1台)  2階:和8/洋6/小屋裏物置)
  • 駐車台数
    20台
    建築年月
    1970年1月築
  • 電気
    北陸電力
    ガス
    LPガス
  • 上水
    公営
    下水
    下水
  • 負担金
    無し
  • 設備
    IHクッキングヒーター、灯油ボイラー

その他

  • 取引態様
    仲介
    現況
    建付地
  • 引渡日
    相談
    引き渡し条件
    現状渡し
  • 仲介手数料
    正規
  • 管理番号
    T117
    情報更新日
    2026/05/12
  • 備考
    現状渡し。(木造瓦葺2階建・延床面積166.85㎡・昭和45年1月新築~平成16年増改築)
    再建築可能。但し、建物用途は「自己専用住宅」に限る。
    後方(西側)崖地について、建築する場合は「敷地後退」あり。
CONTACT
営業時間 9:00~17:30
定休日 年中無休(夏季休業、年末年始のぞく)